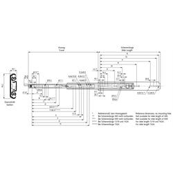
Teleskopické výsuvy DZ 9308, šírka 19,1 mm, do 227 kg, plný výsuv, aretácia zatváracia


Material: Slide elements: Cold rolled steel, zinc plated. Ball retainers: Plastic. Balls: Hardened steel. Sold singly (1 x product no. = 1 single slide). Telescopic ball bearing precision slides for applications in the industrial and electronics sector.
- Single slides available (left or right).
- Lengths to 1.5 meters.
- Lock-in in closed position.
- Lock-out in open position.
- Front lever lock releaze.
- Only for vertical mounting.
- Optional clip-on bracket accessory kits type 634 available.
- Service life 10,000 cycles (to 180 kg up to 75,000 cycles).
- Temperature range: -20°C to +70°C.
SKU | Type | Typ | Rail Length [mm] | Extension +/- 3,2 [mm] | A [mm] | B [mm] | C [mm] | D [mm] | E [mm] | F [mm] | G [mm] | H [mm] | J [mm] | K [mm] | M [mm] | N [mm] | P [mm] | Q [mm] | R [mm] | Load Value / Pair [kg] | Weight [kg] |
---|---|---|---|---|---|---|---|---|---|---|---|---|---|---|---|---|---|---|---|---|---|
64905212 | links | DZ9308-0012L-E4 | 305 | 305 | - | - | - | - | - | 153,9 | 179,3 | 198,4 | 217,4 | - | - | - | 203,2 | 260,4 | 279,4 | 227 | 1,46 |
64905214 | links | DZ9308-0014L-E4 | 356 | 356 | - | - | - | - | - | 204,7 | 230,1 | 249,2 | 268,2 | - | - | - | 254,0 | 311,2 | 330,2 | 227 | 1,71 |
64905216 | links | DZ9308-0016L-E4 | 406 | 406 | - | - | - | - | - | 255,5 | 280,9 | 300,0 | 319,0 | - | - | - | 304,8 | 362,0 | 381,0 | 227 | 1,97 |
64905218 | links | DZ9308-0018L-E4 | 457 | 457 | 127 | - | - | - | - | 306,3 | 331,7 | 350,8 | 369,8 | - | - | - | 355,6 | 412,8 | 431,8 | 227 | 2,21 |
64905220 | links | DZ9308-0020L-E4 | 508 | 508 | 127 | - | - | - | 296,9 | 357,1 | 382,5 | 401,6 | 420,6 | - | - | - | 406,4 | 463,6 | 482,6 | 227 | 2,45 |
64905222 | links | DZ9308-0022L-E4 | 559 | 559 | 127 | 190,5 | - | - | 347,7 | 407,9 | 433,3 | 452,4 | 471,4 | - | - | - | 457,2 | 514,4 | 533,4 | 227 | 2,69 |
64905224 | links | DZ9308-0024L-E4 | 610 | 610 | 127 | 190,5 | - | - | 398,5 | 458,7 | 484,1 | 503,2 | 522,2 | - | - | - | 508,0 | 565,2 | 584,2 | 227 | 2,96 |
64905226 | links | DZ9308-0026L-E4 | 660 | 660 | 127 | 190,5 | - | - | 449,3 | 509,5 | 534,9 | 554,0 | 573,0 | - | - | - | 558,8 | 616,0 | 635,0 | 227 | 3,20 |
64905228 | links | DZ9308-0028L-E4 | 711 | 711 | 127 | 190,5 | - | - | 500,1 | 560,3 | 585,7 | 604,8 | 623,8 | - | - | - | 609,6 | 666,8 | 685,8 | 227 | 3,46 |
64905230 | links | DZ9308-0030L-E4 | 762 | 762 | 127 | 190,5 | - | - | 550,9 | 611,1 | 636,5 | 655,6 | 674,6 | 235 | - | 501,7 | 660,4 | 717,6 | 736,6 | 222 | 3,71 |
64905232 | links | DZ9308-0032L-E4 | 813 | 813 | 127 | 190,5 | - | - | 601,7 | 661,9 | 687,3 | 706,4 | 725,4 | 235 | - | 552,5 | 711,2 | 768,4 | 787,4 | 218 | 3,98 |
64905234 | links | DZ9308-0034L-E4 | 864 | 864 | 127 | 190,5 | - | 520,7 | 652,5 | 712,7 | 738,1 | 757,2 | 776,2 | 235 | - | - | 762,0 | 819,2 | 838,2 | 213 | 4,22 |
64905236 | links | DZ9308-0036L-E4 | 914 | 914 | 127 | 190,5 | 368,3 | 520,7 | 703,3 | 763,5 | 788,9 | 808,0 | 827,0 | 235 | - | - | 812,8 | 870,0 | 889,0 | 209 | 4,49 |
64905240 | links | DZ9308-0040L-E4 | 1016 | 1016 | 127 | 190,5 | 368,3 | - | 804,9 | 865,1 | 890,5 | 909,6 | 928,6 | 235 | - | 755,7 | 914,4 | 971,6 | 990,6 | 200 | 5,03 |
64905242 | links | DZ9308-0042L-E4 | 1067 | 1067 | 127 | 190,5 | 368,3 | - | 855,7 | 915,9 | 941,3 | 960,4 | 979,4 | 235 | - | 806,5 | 965,2 | 1022,4 | 1041,4 | 195 | 5,27 |
64905248 | links | DZ9308-0048L-E4 | 1219 | 1219 | 127 | 190,5 | 368,3 | 520,7 | 1008,1 | 1068,3 | 1093,7 | 1112,8 | 1131,8 | 235 | - | 958,9 | 1117,8 | 1174,8 | 1193,8 | 182 | 6,00 |
64905260 | links | DZ9308-0060L-E4 | 1524 | 1524 | 127 | 190,5 | 368,3 | 520,7 | 1312,9 | 1373,1 | 1398,5 | 1417,6 | 1436,6 | 235 | 596,9 | 958,9 | 1422,4 | 1479,6 | 1498,6 | 154 | 7,54 |
64905412 | rechts | DZ9308-0012R-E4 | 305 | 305 | - | - | - | - | - | 153,9 | 179,3 | 198,4 | 217,4 | - | - | - | 203,2 | 260,4 | 279,4 | 227 | 1,46 |
64905414 | rechts | DZ9308-0014R-E4 | 356 | 356 | - | - | - | - | - | 204,7 | 230,1 | 249,2 | 268,2 | - | - | - | 254,0 | 311,2 | 330,2 | 227 | 1,71 |
64905416 | rechts | DZ9308-0016R-E4 | 406 | 406 | - | - | - | - | - | 255,5 | 280,9 | 300,0 | 319,0 | - | - | - | 304,8 | 362,0 | 381,0 | 227 | 1,97 |
64905418 | rechts | DZ9308-0018R-E4 | 457 | 457 | 127 | - | - | - | - | 306,3 | 331,7 | 350,8 | 369,8 | - | - | - | 355,6 | 412,8 | 431,8 | 227 | 2,21 |
64905420 | rechts | DZ9308-0020R-E4 | 508 | 508 | 127 | - | - | - | 296,9 | 357,1 | 382,5 | 401,6 | 420,6 | - | - | - | 406,4 | 463,6 | 482,6 | 227 | 2,45 |
64905422 | rechts | DZ9308-0022R-E4 | 559 | 559 | 127 | 190,5 | - | - | 347,7 | 407,9 | 433,3 | 452,4 | 471,4 | - | - | - | 457,2 | 514,4 | 533,4 | 227 | 2,69 |
64905424 | rechts | DZ9308-0024R-E4 | 610 | 610 | 127 | 190,5 | - | - | 398,5 | 458,7 | 484,1 | 503,2 | 522,2 | - | - | - | 508,0 | 565,2 | 584,2 | 227 | 2,96 |
64905426 | rechts | DZ9308-0026R-E4 | 660 | 660 | 127 | 190,5 | - | - | 449,3 | 509,5 | 534,9 | 554,0 | 573,0 | - | - | - | 558,8 | 616,0 | 635,0 | 227 | 3,20 |
64905428 | rechts | DZ9308-0028R-E4 | 711 | 711 | 127 | 190,5 | - | - | 500,1 | 560,3 | 585,7 | 604,8 | 623,8 | - | - | - | 609,6 | 666,8 | 685,8 | 227 | 3,46 |
64905430 | rechts | DZ9308-0030R-E4 | 762 | 762 | 127 | 190,5 | - | - | 550,9 | 611,1 | 636,5 | 655,6 | 674,6 | 235 | - | 501,7 | 660,4 | 717,6 | 736,6 | 222 | 3,71 |
64905432 | rechts | DZ9308-0032R-E4 | 813 | 813 | 127 | 190,5 | - | - | 601,7 | 661,9 | 687,3 | 706,4 | 725,4 | 235 | - | 552,5 | 711,2 | 768,4 | 787,4 | 218 | 3,98 |
64905434 | rechts | DZ9308-0034R-E4 | 864 | 864 | 127 | 190,5 | - | 520,7 | 652,5 | 712,7 | 738,1 | 757,2 | 776,2 | 235 | - | - | 762,0 | 819,2 | 838,2 | 213 | 4,22 |
64905436 | rechts | DZ9308-0036R-E4 | 914 | 914 | 127 | 190,5 | 368,3 | 520,7 | 703,3 | 763,5 | 788,9 | 808,0 | 827,0 | 235 | - | - | 812,8 | 870,0 | 889,0 | 209 | 4,49 |
64905440 | rechts | DZ9308-0040R-E4 | 1016 | 1016 | 127 | 190,5 | 368,3 | - | 804,9 | 865,1 | 890,5 | 909,6 | 928,6 | 235 | - | 755,7 | 914,4 | 971,6 | 990,6 | 200 | 5,03 |
64905442 | rechts | DZ9308-0042R-E4 | 1067 | 1067 | 127 | 190,5 | 368,3 | - | 855,7 | 915,9 | 941,3 | 960,4 | 979,4 | 235 | - | 806,5 | 965,2 | 1022,4 | 1041,4 | 195 | 5,27 |
64905448 | rechts | DZ9308-0048R-E4 | 1219 | 1219 | 127 | 190,5 | 368,3 | 520,7 | 1008,1 | 1068,3 | 1093,7 | 1112,8 | 1131,8 | 235 | - | 958,9 | 1117,8 | 1174,8 | 1193,8 | 182 | 6,00 |
64905460 | rechts | DZ9308-0060R-E4 | 1524 | 1524 | 127 | 190,5 | 368,3 | 520,7 | 1312,9 | 1373,1 | 1398,5 | 1417,6 | 1436,6 | 235 | 596,9 | 958,9 | 1422,4 | 1479,6 | 1498,6 | 154 | 7,54 |